Проект капитального ремонта здания прачечной (усиление основания и несущих конструкций) разработан на основании чертежей марки АС, технологического задания и Задания на проектирование согласованными с Заказчиком.
Проектом капитального ремонта предусматриваются следующие мероприятия:
- усиление существующих фундаментов буронабивными сваями с устройством монолитных железобетонных ростверков;
- заполнение пустот под ростверком выполнить песком и щебнем мелкой фракции с уплотнением;
- устройство кирпичных пилястр согласно ДБН В1.1-12:2006 "Строительство в сейсмических районах Украины";
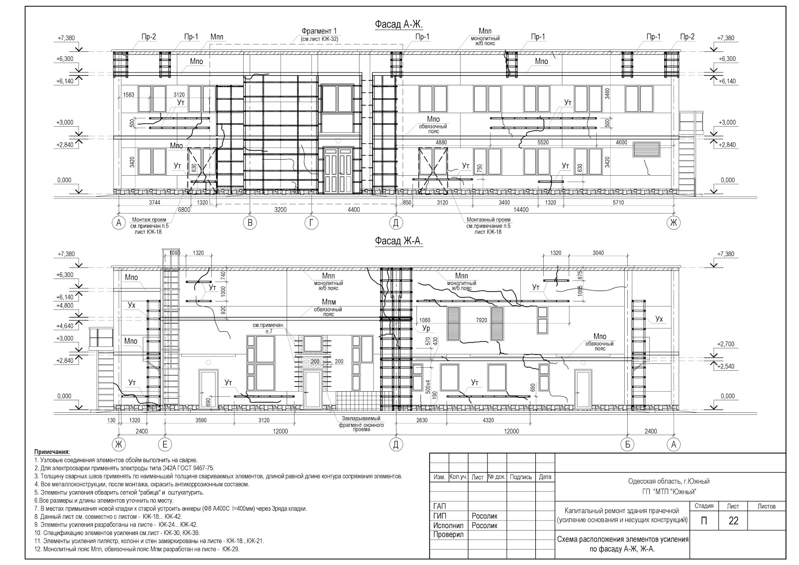
-
усиление несущих конструктивных элементов металлическими обоймами для
устранения дефектов и деформаций здания и дальнейшей нормальной
эксплуатации.
Прачечная с административно-бытовыми помещениями запроектирована в едином объеме.
Производственный корпус одноэтажный, двухпролетный, размерами в плане 24,0х30,0м (в осях) высотой до низа балок покрытия до 4,8м. Часть производственного корпуса перекрывается на отм. 3,0м для размещения венткамеры и помещения для ремонта вентоборудования. Вход в эти помещения предусмотрен по металлической лестнице. Часть производственных (ремонтные мастерские и лаборатория) и технических помещений (венткамеры, помещения баков, насосов и теплового пункта), а также административные и вспомогательные помещения запроектированы в двухэтажной пристройке с размерами в плане 28,8х6,4м (в осях). Высота этажа в пристроенной части 3,3м.
Конструктивно, здание выполнено в каркасно-каменном варианте, с продольными и поперечными несущими каменными стенами.
Пространственная жесткость здания обеспечивается совместной работой горизонтальных дисков перекрытия и вертикальными несущими элементами (стенами, колонами).
Здание прачечной запроектировано в унифицированных сборных железобетонных конструкциях.
Фундаменты под колонны и стены - свайные по ГОСТ 19804.1-79.
Фундаментные балки - железобетонные по серии 1.415-1 вып.1
Фундаменты под оборудованием из монолитного железобетона B12,5.
Колонны - железобетонные по серии 1.423-3 вып.1;2.
Плиты перекрытия - железобетонные по серии 1.141-1 вып.59, вып.60.
Плиты покрытия - железобетонные по ГОСТ 22701.1-77, размерами 3,0х6,0м, и по серии 1.465-7 вып.3 , размерами 1,5х60,м.
Балки - железобетонные, пролетом 12,0м, по серии 1.462-1 вып.1.
Наружные стены производственного кирпича выполнены из обыкновенного глиняного кирпича пластического прессования М100 на растворе М50 морозостойкостью F25; административно-бытовых помещений - из кирпича М75 на растворе М25.
Внутренние стены выполнены из обыкновенного глиняного кирпича марки М75 на растворе марки М25.
Перегородки - кирпичные в производственном корпусе, сборные гипсобетонные - в административно- бытовых помещениях.
Перемычки - сборные железобетонные по серии 1.251-3.
Лестница - сборная железобетонная.
Крыша - совмещенная, в осях 1-6/А-Е - вентилируемая, плоская с внутренним водостоком в ливневую канализацию.
Утеплитель - плиты из пенобетона с плотностью 400кг/м3 и коэффициентом теплопроводности - 0,14.
Горизонтальная гидроизоляция стен выполнена из слоя цементного раствора состава 1:2.













