Архитектурно-строительное проектирование жилых домов и коттеджей, промышленных зданий, торговых центров, магазинов, ресторанов, складов и прочих объектов гражданского, коммерческого и промышленного строительства.
Весь комплекс проектных работ — от первых консультаций и разработки архитектурной концепции — до выполнения рабочей документации в полном объеме. Полезная информация для проектировщиков.
6 марта 2016 г.
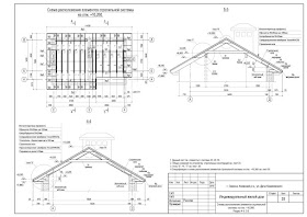
Индивидуальный жилой дом. г. Одесса, ул. Дача Ковалевского.