
ГАП: Сергей Бурлаченко
Архитектор: Николай Кобзарь
Ведущий нженер-проектировщик: Александр Росолик
Инженер-проектировщик: Александр Стоколяс
Инженер-проектировщик: Евгений Дмитренко
Визуализатор: Валентин Пидченко
1.Настоящий комплект чертежей выполнен на основании:
1.1 объемно-планировочных решений, утвержденных Заказчиком.
1.2 заданий, выданных специалистами, выполнивших разделы «Архитектурные решения» (АР) и «Генеральный план, благоустройство и озеленение» (ГП);
1.3 характеристические значения постоянных и временных нагрузок на сооружение, и соответствующие коэффициенты приняты согласно ДБН В.1.2-2: 2006 "Нагрузки и воздействия" и ДБН В.1.2-14-2009 "Общие принципы обеспечения надежности и конструктивной безопасности зданий",
2. За относительную отметку 0,000 принят уровень чистого пола первого этажа здания, что соответствует абсолютной отметке_____ в БСВ.
3. Климатические условия:
- характеристическое значение давления ветра для III района по
ДБН В.1.2-2:2006 "Нагрузки и воздействия. Нормы проектирования" -460 Па;
- характеристическое значение веса снегового покрова на 1м2 горизонтальной проекции земли для II района - 880 Па;
- расчетная сейсмическая бальность участка в соответствии с картой ОСР-2004-А ДБН В.1.1-12:2014 "Строительство в сейсмических районах Украины" равна 8 баллам.
- нормативная глубина сезонного промерзания грунтов - 0,8 м (СНиП 2.01.01-82).
4. Нагрузки, основные расчетные положения:
4.1 Расчет пространственного каркаса здания выполнен с использованием програмного комплекса Structure CAD (SCAD) версии 11.3, для которого составлена расчетная схема и сформированы следующие загружения и их комбинации:
- собственный вес конструкций;
- полезная нагрузка;
- постоянная нагрузка;
- кратковременная нагрузка (снеговая и ветровая);
- сейсмическая нагрузка силой 8 баллов (по 5 направлениям).
5. Конструктивная схема здания - каркасно-связевая.
Жесткость здания обеспечивается монолитными ж.б. вертикальными конструкциями объединенных между собой горизонтальными дисками перекрытий.
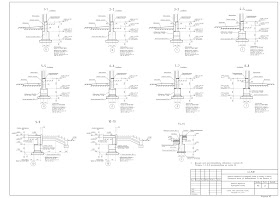
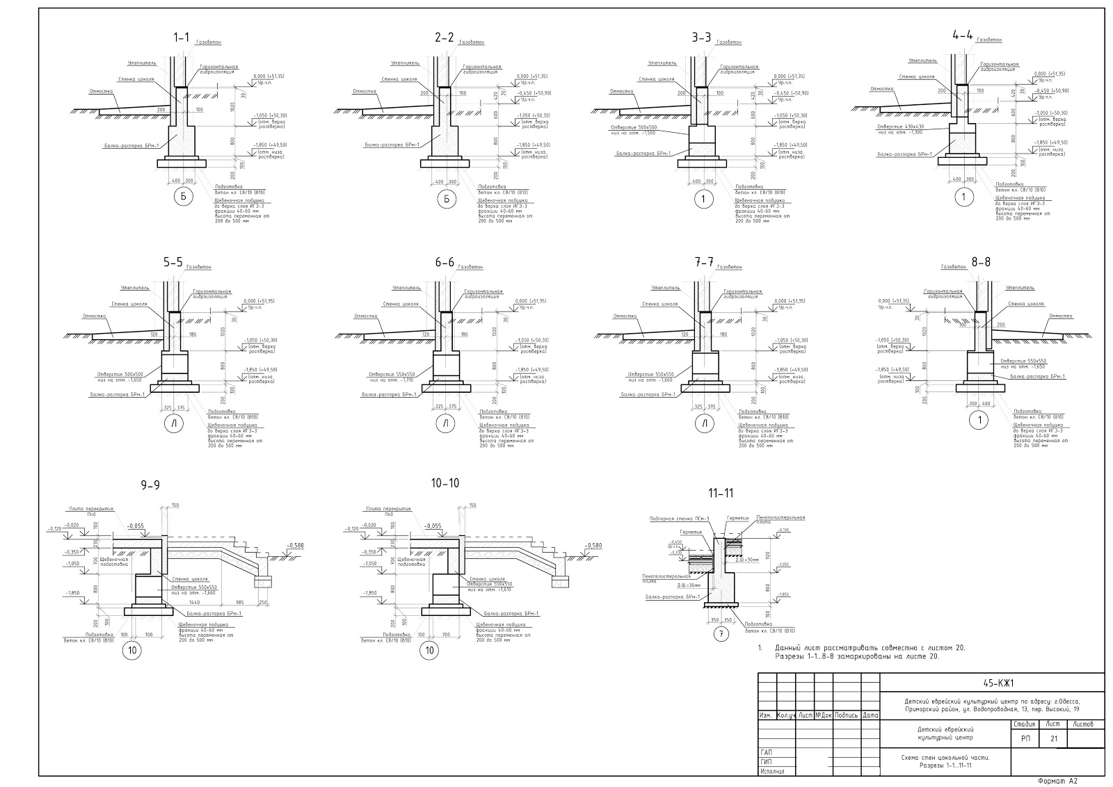
Фундаменты запроектированы из отдельностоящих групп свай, объединяемых монолитными ж.б. ростверками.
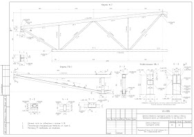
Колонны - монолитные ж.б. квадратные, сечением 500х500 мм.
Диафрагмы жесткости - монолитные ж.б., толщиной 300 мм.
Лестничные клетки - монолитные ж.б.
Стеновое огрождение - газобетонные блоки и вентилируемая фасадная система.
Плиты перекрытия - монолитные ж.б., толщиной 230 мм с капителями толщиной 200 мм от плиты перекрытия и монолитные ж.б. балки обрамлением отверстий атримов сечением 800х400 мм, 600х400 мм, 800х300 мм.
Покрытие - стальные фермы.














































