- Задания на проектирование, выданного Заказчиком;
- Архитектурно-планировочных решений (чертежей марки "АР").
Конструктивная схема здания - объемно-блочная (модульная).
Фундаменты - на естественном основании, ленточные, из монолитного железобетона (фундаментная лента) и сборных железобетонных фундаментных блоков (фундаментные стены).
Стены - деревянные, каркасной конструкции. Жесткость стен обеспечивается совместной работой продольных и поперечных стен, а также устройством обшивки из ОСП;
Стойки и перемычки стен - из клееного бруса, сечением XхХ мм
Толщина наружных стен - 232мм (без учета наружной отделки).
Толщина внутренних несущих стен - 194мм.
Перегородки - из ГКЛ по оцинкованным профилям, толщиной 100мм.
Перекрытие - по деревянным балкам.
Жесткость перекрытия обеспечивается путем устройства настила (OСП) и подшивки потолка.
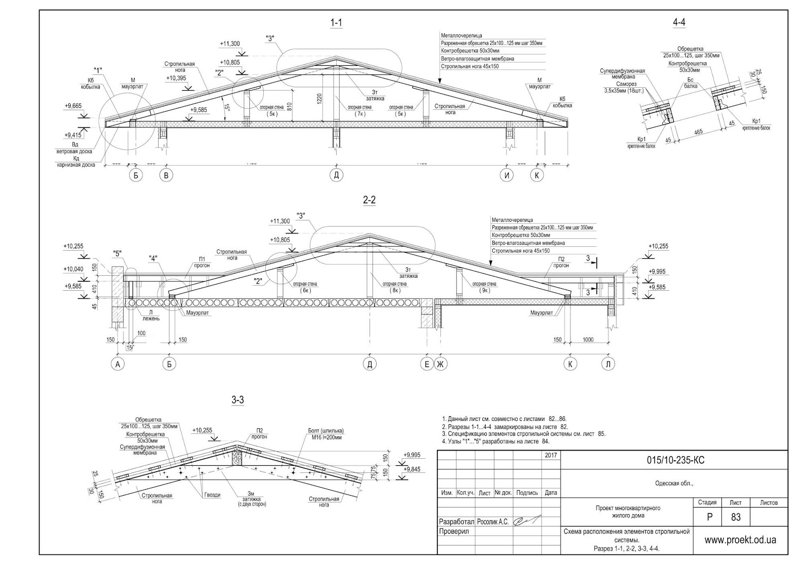
Крыша - двускатная, прямоугольной формы в плане.
Несущие конструкции крыши - деревянные наслонные стропила из бруса, сечением XхХ мм.
Кровля - металлочерепица по разреженной обрешетке из доски.
Стены лестничной клетки (в осях 5-6 / А-Е)- из газобетонных блоков "АЭРОК Классик" по ТУ У В.2.7-26.6-34840150-001:2009, толщиной 300мм. Стены усилены сердечниками из монолитного ж/б, сечением 300х300мм.
Перемычки лестничной клетки (в осях 5-6 / А-Е) - монолитные железобетонные.
Перекрытие и покрытие лестничной клетки (в осях 5-6 / А-Е) - из сборных ж/б многопустотных плит, толщиной 220мм уложенным по монолитному ж/б поясу, сечением 300х200мм.
Балки (в осях 5-6 / А-Е) - монолитные ж/б, сечением 300х400мм.
Лестница - из сборных ж/б ступеней по металлическим косоурам. Площадки - сборные ж/б из многопустотных плит, толщиной 220мм

























